Home
个人中心
广告服务
使用帮助
关于我们
登录
注册
用户名
Email
自动登录
找回密码
密码
登录
注册
搜索
本版
用户
首页
Portal
前沿
动态
人物
会议
工具
论坛
BBS
家园
Space
好友
帖子
收藏
道具
勋章
任务
淘帖
导读
设置
退出
流体中文网
»
论坛
›
工程应用
›
流体机械论坛
›
关于管路内部受力点计算问题
返回列表
查看:
2803
|
回复:
0
关于管路内部受力点计算问题
[复制链接]
chch3605
chch3605
当前离线
积分
34
IP卡
狗仔卡
发表于 2011-4-13 21:36:33
|
显示全部楼层
|
阅读模式
马上注册,结交更多好友,享用更多功能,让你轻松玩转社区。
您需要
登录
才可以下载或查看,没有账号?
注册
x
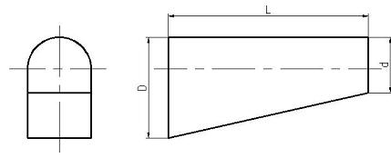
如附件里面的一个管路,进口截面比出口截面大,管路的下侧为平面,如何计算水对下侧平面的压力。哪位能指导下啊!不胜感谢。
[
本帖最后由 chch3605 于 2011-4-13 13:37 编辑
]
回复
使用道具
举报
提升卡
置顶卡
沉默卡
喧嚣卡
变色卡
显身卡
返回列表
高级模式
B
Color
Image
Link
Quote
Code
Smilies
您需要登录后才可以回帖
登录
|
注册
本版积分规则
发表回复
回帖后跳转到最后一页
浏览过的版块
ANSYS论坛
ICEMCFD论坛
实验技术与设备
GridPro论坛
FLUENT藏经阁
前后处理软件论坛
Fluent论坛
NUMECA论坛
航空航天论坛
快速回复
返回顶部
返回列表