|
|

楼主 |
发表于 2011-1-18 10:11:48
|
显示全部楼层
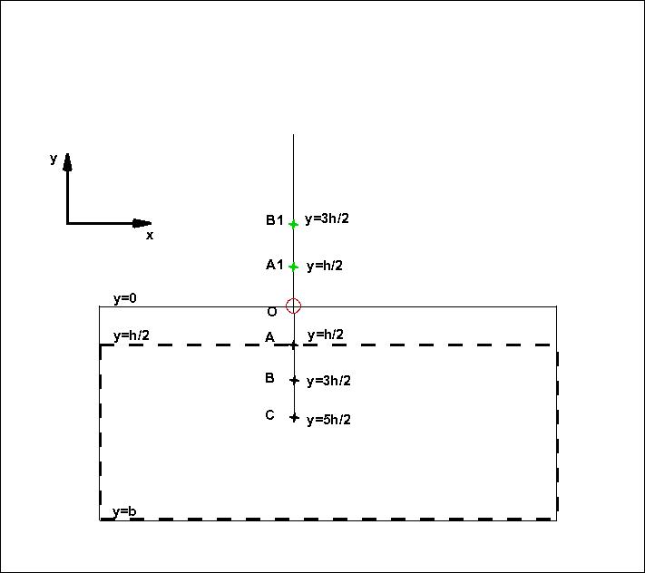
我们以前用差分法算过柱形激波-柱形密度界面干扰的RM问题。 在r=0处采用图示方法处理。
1)网格点在半点上,即第一个网格点r=h/2, r=0处不布置网格。
2)在seta=seta0网格线上,利用 seta=seta0+PI 处的信息(可以得到),给出图中绿色点处的物理量。 对于标量(密度、温度、压力)可以直接得到; 但对于矢量(径向速度、切向速度)应当注意符号 (因为seta0+PI处的基向量与seta0处的基向量相反, 因此应当把seta0+PI处的速度分量乘以-1,作为图中绿色点处的速度分量使用)。
3)这样图中红色点处就可以用内点的高精度差分格式计算导数了。 计算完导数,进行时间推进就可以得到下一个时间步的值了。 |
|