找回密码
 注册
查看: 3255|回复: 0

求教LBGK模拟实际尺寸较大模型

[复制链接]
发表于 2018-12-5 14:36:20 | 显示全部楼层 |阅读模式

马上注册,结交更多好友,享用更多功能,让你轻松玩转社区。

您需要 登录 才可以下载或查看,没有账号?注册

x
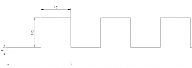
模型的部分如图片所示,左侧流进右侧流出,实际物理尺寸:L=35.2mm,H=0.175mm,Lg=1.6mm,Hg=1.2mm。介质为水,RE=23810
我的思路是先定网格数Nx、Ny,这样已知无量纲化比例r、ur、νr,求得格子粘度νl,特征速度U
用的D2Q9模型,出入口zou/he压力边界条件,其他边界用非平衡外推,计算结果很差
H对应的网格数最大能取35,再往上加会超过编译器限制无法运行。
看了何雅玲老师的书,她书上的无量纲化是先定网格数和格子粘度νl,反求出实际尺寸,尺寸太小,不适用于我这种情况。
捕获11.JPG
您需要登录后才可以回帖 登录 | 注册

本版积分规则

快速回复 返回顶部 返回列表